【Bartley】 The Gazania (D19)
Project Details
THE LILIUM 莲逸轩
(D19 巴特礼)
【North-East Condo】
Pricing From:
1.2.3.4 BEDROOM AVAILABLE
(X BEDROOM SOLD OUT)
| 3 Bed | 3 Bath |
| 1292 Sqft | $1,683 psf |
Freehold 250 Units TOP Jul 2022 Height 5 Storey 1 Bed 2 Bed 2 Bed + Study 3 Bed 4 Bed 4 + Study

Ready To Move in Soon! Collect Keys Mid This Year (2022)! where it is only 3 Mins WALK to Bartley MRT!
Head Downstairs to explore an array of shophouses with eateries! Convenient Shops for Daily Necessities!
RARE FREEHOLD Project which is WALKING Distance to MRT!
Within 1km, there are Maris Stella High School [TOP 19] and Paya Lebar Methodist Girls' School (Primary) [TOP 29]!
LIVE near the MEGA Transformation of Paya Lebar and Bidadari Estate! Building Commercial Business Hubs, Sport Hubs and Brand New Amenities here!
PROJECT DETAILS
| LAYOUT(S) |
Size |
PSF |
Price |
|---|---|---|---|
|
|
463 | $2,458 | $1,138,000 |
|
2 Bed
|
624 | $2,244 | $1,492,000 |
|
2 Bed + Study
|
700 | $2,250 | $1,575,000 |
|
3 Bed
|
915 | $2,317 | $2,120,000 |
|
3 Bed (P)
|
958 | $2,245 | $2,151,000 |
|
4 Bed
|
1259 | $2,307 | $2,904,000 |
|
4 Bed + Study
|
1292 | $2,268 | $2,930,000 |
|
Penthouse
|
1819 | $1,956 | $3,558,000 |
|
Units Sold
|
|||
(P) = Premium
*All Pricing Are Subjected to Developer Changes & Availability. Contact Us Now.
| Project Name | The Gazania |
|---|---|
|
|
|
Tenure: |
Freehold |
TOP: |
Jul 2022 |
Location: |
5 How Sun Road, Singapore 538527 |
Number of Units: |
250 Units |
Building Height: |
5 Storey |
|
No of Facilities: |
23 |
|
Layout Types |
Sqft |
Units |
| 1 Bed | 441 - 463 | 45 |
| 2 Bed | 624 - 678 | 50 |
| 2 + Study | 678 - 700 | 30 |
| 3 Bed | 850 - 915 | 40 |
| 3 Bed (P) | 958 - 1055 | 35 |
| 4 Bed | 1259 - 1851 | 33 |
| 4 Bed + Study | 1292 - 1841 | 10 |
| Penthouse | 1808 - 1970 | 7 |
(P) = Premium
LOCATION DETAILS

Why Buyers buy here?
AMENITIES
MRT | School | Supermarket | Mall
BARTLEY MRT (200M AWAY)
SERANGOON MRT (820M AWAY)
East West Line (EWL)
North South Line (NSL)
North East Line (NEL)
Circle Line (CCL)
Downtown Line (DTL)
Thomson-East Coast Line (TEL)
Jurong Region Line (JRL)
Cross Island Line (CRL)
- 1. MARIS STELLA HIGH SCHOOL [TOP 19]
(300M AWAY) - 2. PAYA LEBAR METHODIST GIRLS' SCHOOL (PRIMARY) [TOP 29]
(900M AWAY)
- 1. CEDAR PRIMARY SCHOOL
- 2. XINGHUA PRIMARY SCHOOL
- 3. YANGZHENG PRIMARY SCHOOL
- 4. ZHONGHUA PRIMARY SCHOOL
- URBAN MART (400M AWAY)
- NTUC SUPERMARKET (600M AWAY)
SITE PLAN

FLOOR PLAN
Type: A2
| Price: | $ | 1138000 | 1,138,000 |
| 1138000 | 0.25 | ||
| 1138000 | 0.75 | ||
| 25% *D.P: | $ | 284,500 | |
| 75% Loan: | $ | 853500 | 853,500 |
| Tenure: | 30 | ||
| Interest: | 1% | ||
| Monthly: | $ | 2,745 | |
| 853500 | 0.01 | ||
| 8535 | 30 | ||
| 256050 | 853500 | ||
| 1109550 | 0.00360 | ||
| 3994.38 | 0.6873 |
you have to Re-Tabulize 3 times for Calculation to be fully correct !!
*All Pricing Are Subjected to Developer Changes & Availability. Contact Us Now.
A2 463 Sqft

A1 441 Sqft

A3 441 Sqft

A4 463 Sqft

Type: B2
| Price: | $ | 1492000 | 1,492,000 |
| 1492000 | 0.25 | ||
| 1492000 | 0.75 | ||
| 25% *D.P: | $ | 373,000 | |
| 75% Loan: | $ | 1119000 | 1,119,000 |
| Tenure: | 30 | ||
| Interest: | 1% | ||
| Monthly: | $ | 3,599 | |
| 1119000 | 0.01 | ||
| 11190 | 30 | ||
| 335700 | 1119000 | ||
| 1454700 | 0.00360 | ||
| 5236.92 | 0.6873 |
you have to Re-Tabulize 3 times for Calculation to be fully correct !!
*All Pricing Are Subjected to Developer Changes & Availability. Contact Us Now.
B2 635 Sqft

B1 635 Sqft
B3 624 Sqft
B4 678 Sqft
B5P 624 Sqft
B8 657 Sqft
Type: B6
| Price: | $ | 1575000 | 1,575,000 |
| 1575000 | 0.25 | ||
| 1575000 | 0.75 | ||
| 25% *D.P: | $ | 393,750 | |
| 75% Loan: | $ | 1181250 | 1,181,250 |
| Tenure: | 30 | ||
| Interest: | 1% | ||
| Monthly: | $ | 3,800 | |
| 1181250 | 0.01 | ||
| 11812.5 | 30 | ||
| 354375 | 1181250 | ||
| 1535625 | 0.00360 | ||
| 5528.25 | 0.6873 |
you have to Re-Tabulize 3 times for Calculation to be fully correct !!
*All Pricing Are Subjected to Developer Changes & Availability. Contact Us Now.
B6 700 Sqft
B7 678 Sqft
Type: C4B
| Price: | $ | 2120000 | 2,120,000 |
| 2120000 | 0.25 | ||
| 2120000 | 0.75 | ||
| 25% *D.P: | $ | 530,000 | |
| 75% Loan: | $ | 1590000 | 1,590,000 |
| Tenure: | 30 | ||
| Interest: | 1% | ||
| Monthly: | $ | 5,114 | |
| 1590000 | 0.01 | ||
| 15900 | 30 | ||
| 477000 | 1590000 | ||
| 2067000 | 0.00360 | ||
| 7441.2 | 0.6873 |
you have to Re-Tabulize 3 times for Calculation to be fully correct !!
*All Pricing Are Subjected to Developer Changes & Availability. Contact Us Now.
C4B 915 Sqft

C4A 904 Sqft
C7 850 Sqft
C6 883 Sqft
Type: C3
| Price: | $ | 2151000 | 2,151,000 |
| 2151000 | 0.25 | ||
| 2151000 | 0.75 | ||
| 25% *D.P: | $ | 537,750 | |
| 75% Loan: | $ | 1613250 | 1,613,250 |
| Tenure: | 30 | ||
| Interest: | 1% | ||
| Monthly: | $ | 5,189 | |
| 1613250 | 0.01 | ||
| 16132.5 | 30 | ||
| 483975 | 1613250 | ||
| 2097225 | 0.00360 | ||
| 7550.01 | 0.6873 |
you have to Re-Tabulize 3 times for Calculation to be fully correct !!
*All Pricing Are Subjected to Developer Changes & Availability. Contact Us Now.
C3 958 Sqft
C1 990 Sqft
C2 1055 Sqft
Type: D3B
| Price: | $ | 2904000 | 2,904,000 |
| 2904000 | 0.25 | ||
| 2904000 | 0.75 | ||
| 25% *D.P: | $ | 726,000 | |
| 75% Loan: | $ | 2178000 | 2,178,000 |
| Tenure: | 30 | ||
| Interest: | 1% | ||
| Monthly: | $ | 7,006 | |
| 2178000 | 0.01 | ||
| 21780 | 30 | ||
| 653400 | 2178000 | ||
| 2831400 | 0.00360 | ||
| 10193.04 | 0.6873 |
you have to Re-Tabulize 3 times for Calculation to be fully correct !!
*All Pricing Are Subjected to Developer Changes & Availability. Contact Us Now.
D3B 1259 Sqft

D1C 1291 Sqft

D2 1281 Sqft

D3BM 1744 Sqft


D4 1302 Sqft

D6AM 1733 Sqft


D6BM 1815 Sqft


Type: D3A
| Price: | $ | 2930000 | 2,930,000 |
| 2930000 | 0.25 | ||
| 2930000 | 0.75 | ||
| 25% *D.P: | $ | 732,500 | |
| 75% Loan: | $ | 2197500 | 2,197,500 |
| Tenure: | 30 | ||
| Interest: | 1% | ||
| Monthly: | $ | 7,068 | |
| 2197500 | 0.01 | ||
| 21975 | 30 | ||
| 659250 | 2197500 | ||
| 2856750 | 0.00360 | ||
| 10284.3 | 0.6873 |
you have to Re-Tabulize 3 times for Calculation to be fully correct !!
*All Pricing Are Subjected to Developer Changes & Availability. Contact Us Now.
D3A 1765 Sqft

D1AM 1830 Sqft

D1BM 1830 Sqft

D1CM 1711 Sqft

D2M 1841 Sqft

D3AM 1765 Sqft

D4M 1841 Sqft

D5M 1744 Sqft
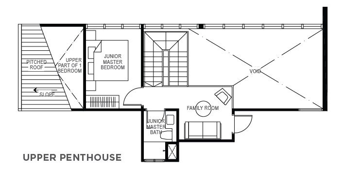
Type: PH3
| Price: | $ | 3558000 | 3,558,000 |
| 3558000 | 0.25 | ||
| 3558000 | 0.75 | ||
| 25% *D.P: | $ | 889,500 | |
| 75% Loan: | $ | 2668500 | 2,668,500 |
| Tenure: | 30 | ||
| Interest: | 1% | ||
| Monthly: | $ | 8,583 | |
| 2668500 | 0.01 | ||
| 26685 | 30 | ||
| 800550 | 2668500 | ||
| 3469050 | 0.00360 | ||
| 12488.58 | 0.6873 |
you have to Re-Tabulize 3 times for Calculation to be fully correct !!
*All Pricing Are Subjected to Developer Changes & Availability. Contact Us Now.
PH3 1819 Sqft

PH4 1862 Sqft


PH5 1808 Sqft
PH6 1851 Sqft


PH7 1970 Sqft
DIRECT DEVELOPER PRICE
100% Best Price Guarantee ! Early Bird Price ! Exclusive VVIP Preview !
FAST RESPONSE TIME
Immediate Viewing of All Multiples Showflat for Comparison
Free Cash-Flow & Timeline Planning
Lifetime After-sales Services Provided
BEST BUYERS' EXPERIENCE
Have A Ease of Mind Seamless Transition to Your Next New Home
Proven in-House Asset Capital Growth Strategists for Your Current to Future Property's Stages Direction
Call Us At +65-61007118
For Latest Pricing, Brochure & Viewing Arrangement.











































